



Tanrıkulu İnşaat, Sakarya’nın Hendek ilçesinde faaliyet gösteren profesyonel bir mimarlık ofisi ve inşaat firmasıdır. Yıllardır bireysel ve kurumsal müşterilerine mimari proje çizimi, ruhsat projesi, anahtar teslim inşaat ve tadilat-dekorasyon hizmetleri sunarak güvenilir bir marka haline gelmiştir.
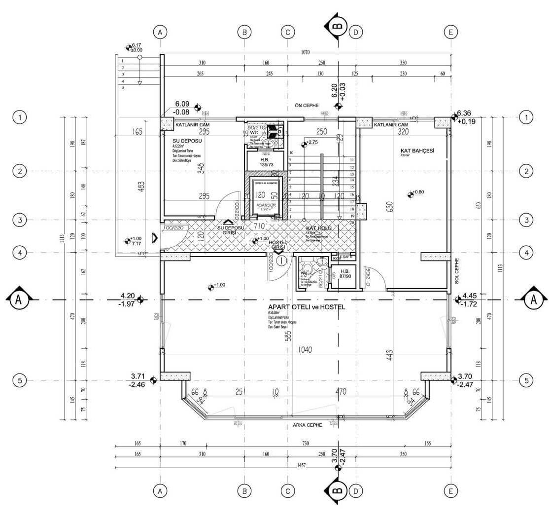
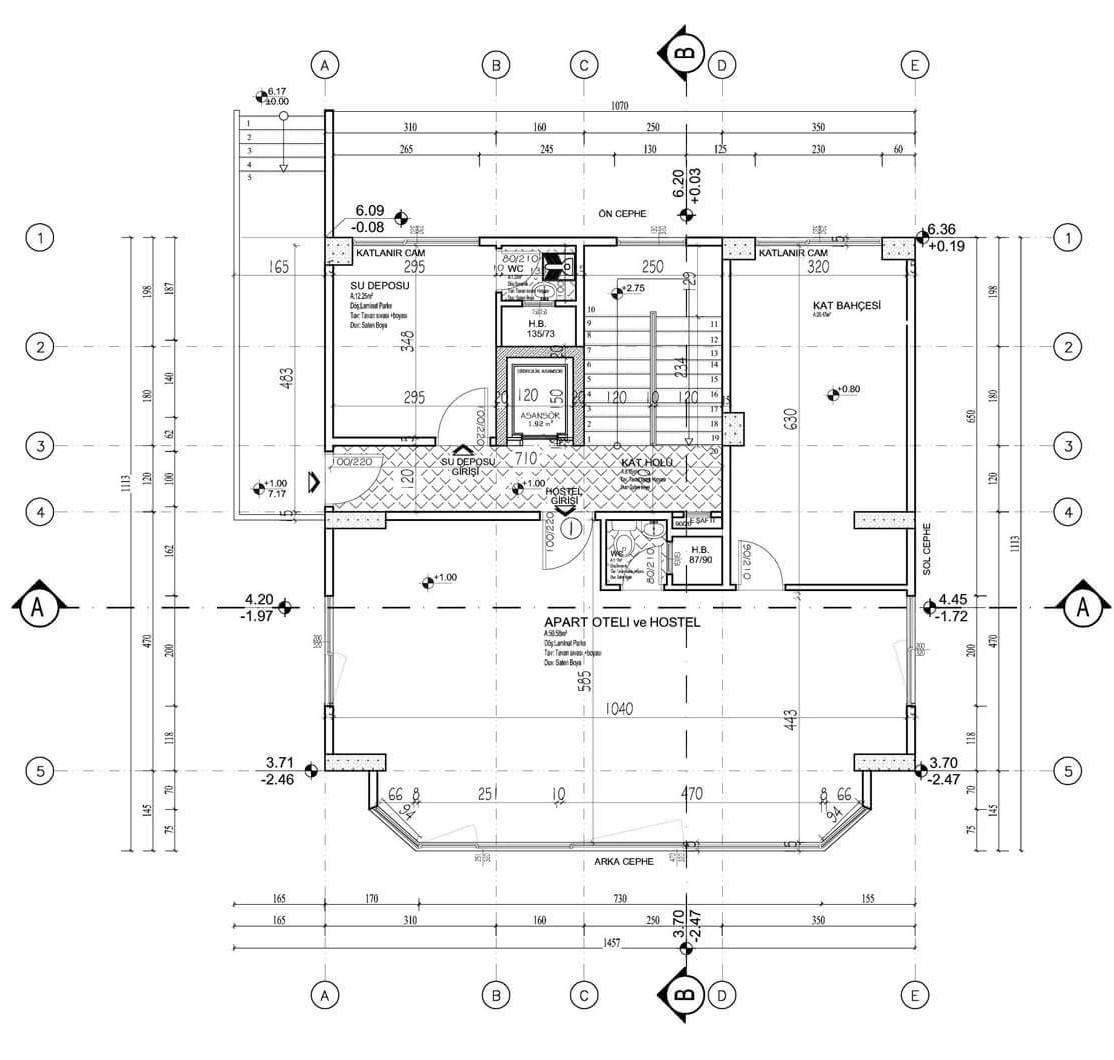
Mimari proje, bir yapının tasarım aşamasından inşaat sürecine kadar tüm teknik, estetik ve yasal detaylarını kapsayan kapsamlı bir planlama sürecidir. Bu süreçte yapının görünümü, kullanım alanı, yapı sistemi ve yönetmeliklere uygunluğu belirlenir.
Bir mimari proje, yalnızca çizim değil; binanın güvenliği, dayanıklılığı, estetiği ve işlevselliği için hazırlanan detaylı bir yol haritasıdır.
Hendek Mimarlık Ofisi Tanrıkulu İnşaat ile Çalışmanın Avantajları
Tanrıkulu İnşaat olarak, her müşterimize özel çözümler üreten bir Hendek Mimarlık Ofisi olarak faaliyet gösteriyoruz.
avantajlarını elde edersiniz.
Sakarya genelinde ve özellikle Hendek ilçesinde mimari proje çizimi konusunda birçok konut, villa, iş yeri ve endüstriyel yapıyı başarıyla tasarladık.
Her projemizde estetik, dayanıklılık ve işlevselliği bir arada sunuyor; ruhsat aşamasından uygulamaya kadar tüm süreci sizin adınıza yönetiyoruz.
Tanrıkulu İnşaat | Hendek Mimarlık Ofisi, mimari vizyonunuzu gerçeğe dönüştürmek için yanınızda.
📍 Hizmet Bölgemiz: Hendek, Sakarya ve çevre ilçeler
📞 İletişim: 0537 870 2670
🌐 Web: www.tanrikuluinsaat.com.tr